'); })();
首页 > 室内装修 > 住宅装修

现代风合院别墅样板房施工图+物料书

文件类型: rar
界面语言: 简体中文
运行环境: NT/2000/XP/2003/Vista
授权方式: 共享软件
软件大小: 28.54MB
软件等级:
资料类型: 规范
软件登陆: admin
作 者 :
解压密码: www.tmgczl.com
点数: 4点
点数说明: 下载点数获取方式:
(1)通过充值获取点数在线充值
(2)通过每天签到获取点数,每天赠送的点数随机签到
(3)通过共享资料,别人下载有收益分成发布
下载地址: [ 权限:普通会员 下载地址1 ]
软件简介: [安徽]现代风合院别墅样板房施工图+物料书(2018年)

 

资料内容包含:CAD施工图封面,图纸目录,施工图设计说明、平面图,立面图,节点大样,门表门节点,给排水图纸等等

[安徽]现代风合院别墅样板房施工图+物料书_1

一层平面布置图.png

[安徽]现代风合院别墅样板房施工图+物料书_2

二层地坪饰面图.png

[安徽]现代风合院别墅样板房施工图+物料书_3

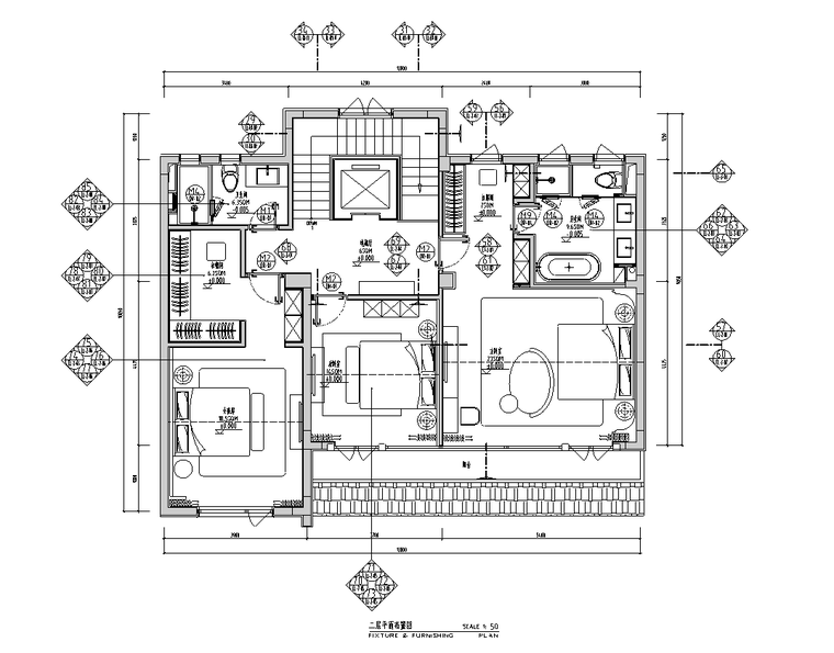
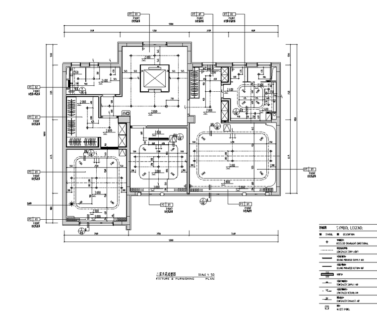
二层平面布置图.png

[安徽]现代风合院别墅样板房施工图+物料书_4

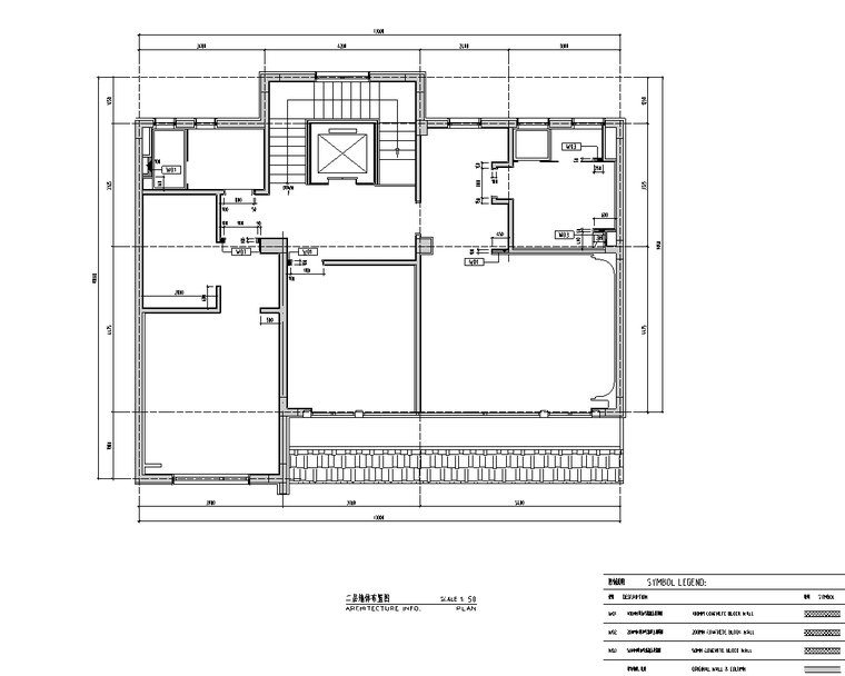
二层墙体布置图.png

[安徽]现代风合院别墅样板房施工图+物料书_5

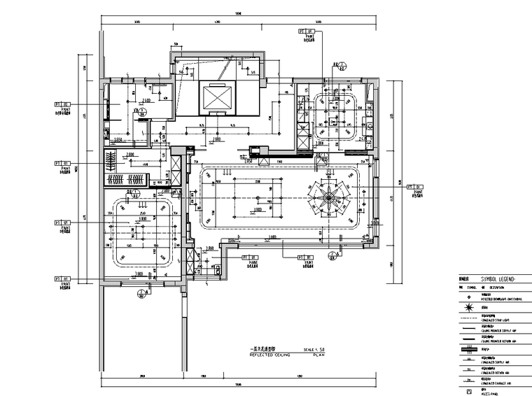
二层天花造型图.png

[安徽]现代风合院别墅样板房施工图+物料书_6

二层主卧立面图.png

[安徽]现代风合院别墅样板房施工图+物料书_7

负一层茶室立面图.png

[安徽]现代风合院别墅样板房施工图+物料书_8

一层厨房立面图.png

[安徽]现代风合院别墅样板房施工图+物料书_9

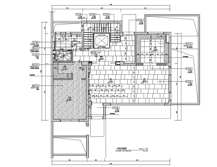
一层地坪饰面图.png

[安徽]现代风合院别墅样板房施工图+物料书_10

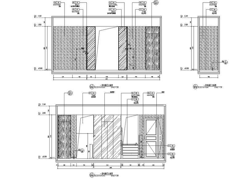
一层电梯厅立面图.png

[安徽]现代风合院别墅样板房施工图+物料书_11

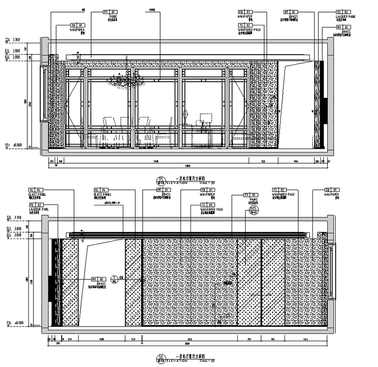
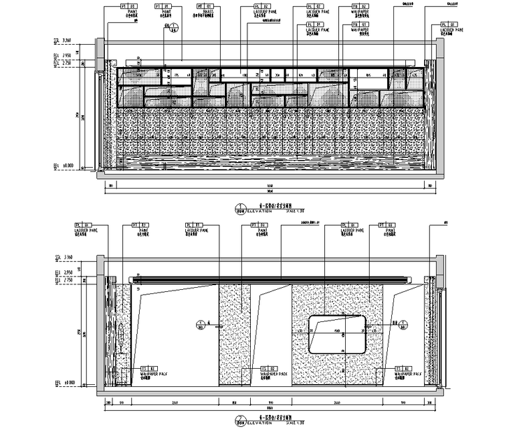
一层客餐厅立面图.png

[安徽]现代风合院别墅样板房施工图+物料书_12

一层客餐厅立面图1.png

[安徽]现代风合院别墅样板房施工图+物料书_13

一层墙体布置图.png

[安徽]现代风合院别墅样板房施工图+物料书_14

一层天花造型图.png

[安徽]现代风合院别墅样板房施工图+物料书_15

一层长辈立面图.png

下载帮助: 发表评论 加入收藏夹 错误报告
版权声明

本文仅代表作者观点,不代表本站立场。
本文有所侵权,违规,请发送链接至 tmgczl@163.com一个工作日内处理完毕

本文地址:https://www.tmgczl.com//shinei/jiazhuangsheji/2021-07-29/100719.html

留言与评论(共有 条评论)

   
验证码:
资诺讯广告飞猫资源网

Powered By 工程资料

使用手机软件扫描微信二维码