'); })();
首页 > 室内装修 > 住宅装修

[成都]875㎡二层四居别墅样板间装修施工图

文件类型: rar
界面语言: 简体中文
运行环境: NT/2000/XP/2003/Vista
授权方式: 共享软件
软件大小:

文件大小:570.18MB

软件等级:
资料类型: 规范
软件登陆: jian
作 者 : [db:软件作者]
解压密码:
点数: 1点
点数说明: 下载点数获取方式:
(1)通过充值获取点数在线充值
(2)通过每天签到获取点数,每天赠送的点数随机签到
(3)通过共享资料,别人下载有收益分成发布
下载地址: [ 权限:普通会员 下载地址1 ]
软件简介:

[成都]绿城文儒德项目875㎡二层四居室别墅样板间丨高清效果图+设计方案+施工图+高清摄影丨2017.08

资料内容包含:CAD施工图(图纸目录,施工图设计说明、平面图,立面图,节点大样,给排水,电气图纸等)设计方案,效果图,官方摄影等

一层平面布置图

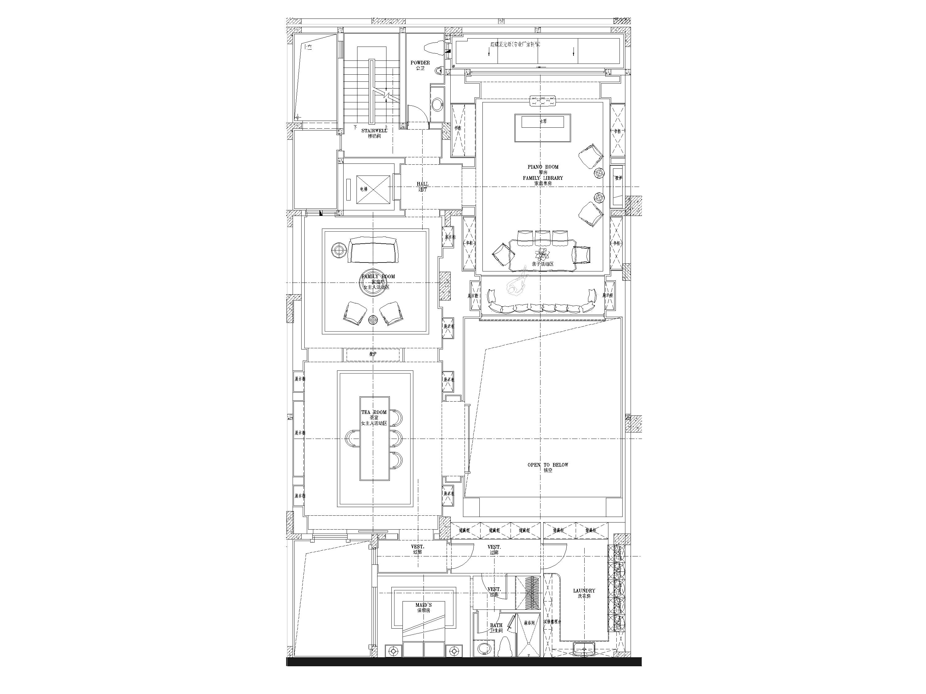
二层平面布置图

夹层平面布置图

负二层平面布置图

一层水点定位图

一层地面铺装图

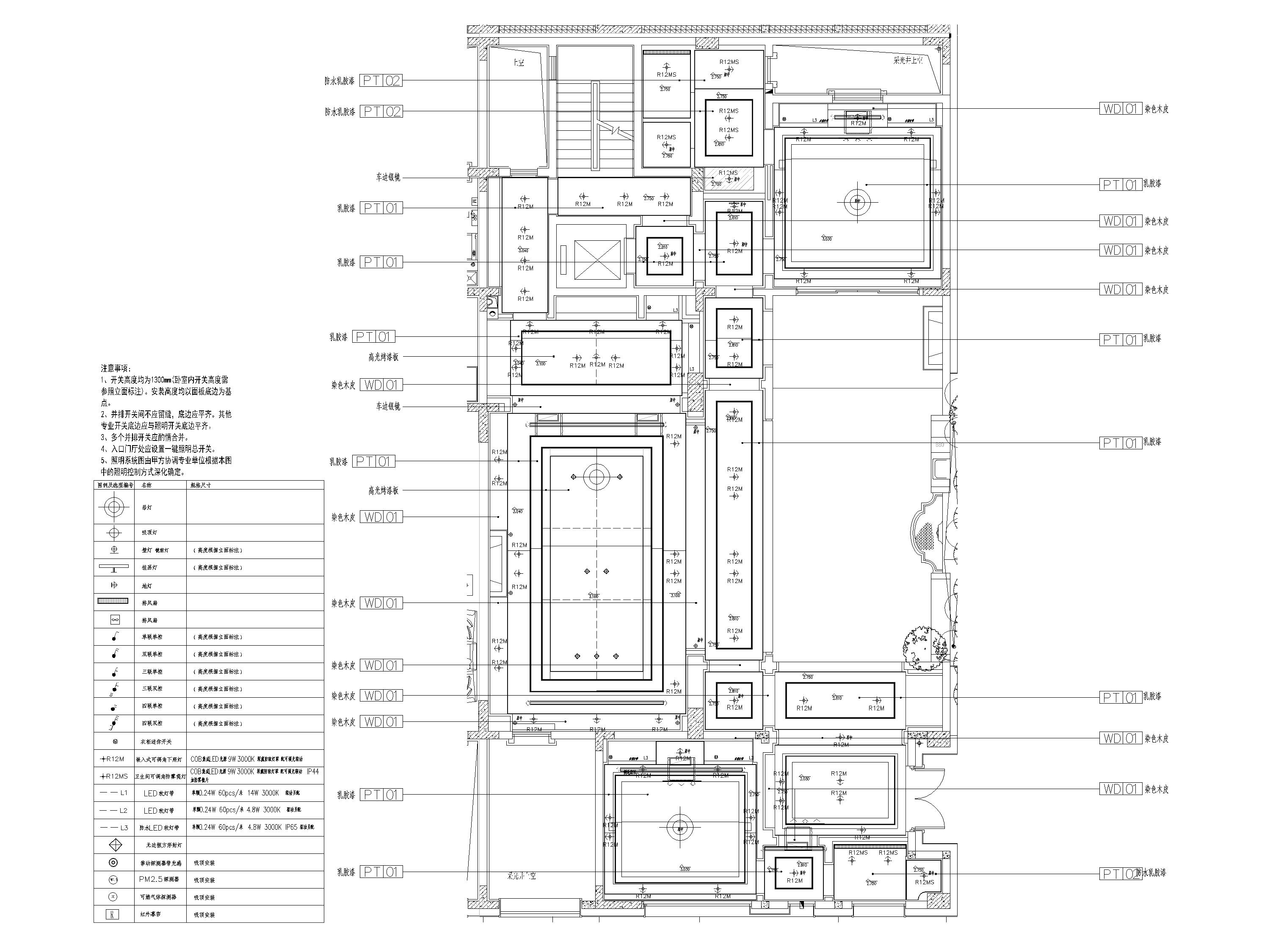
一层天花布置图

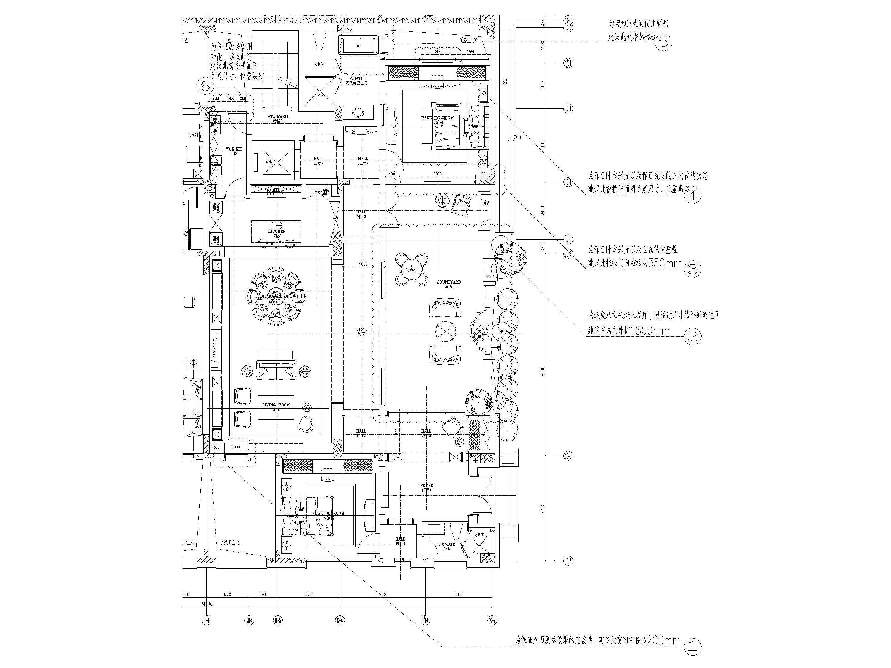
一层窗洞拆改说明图

客厅立面图

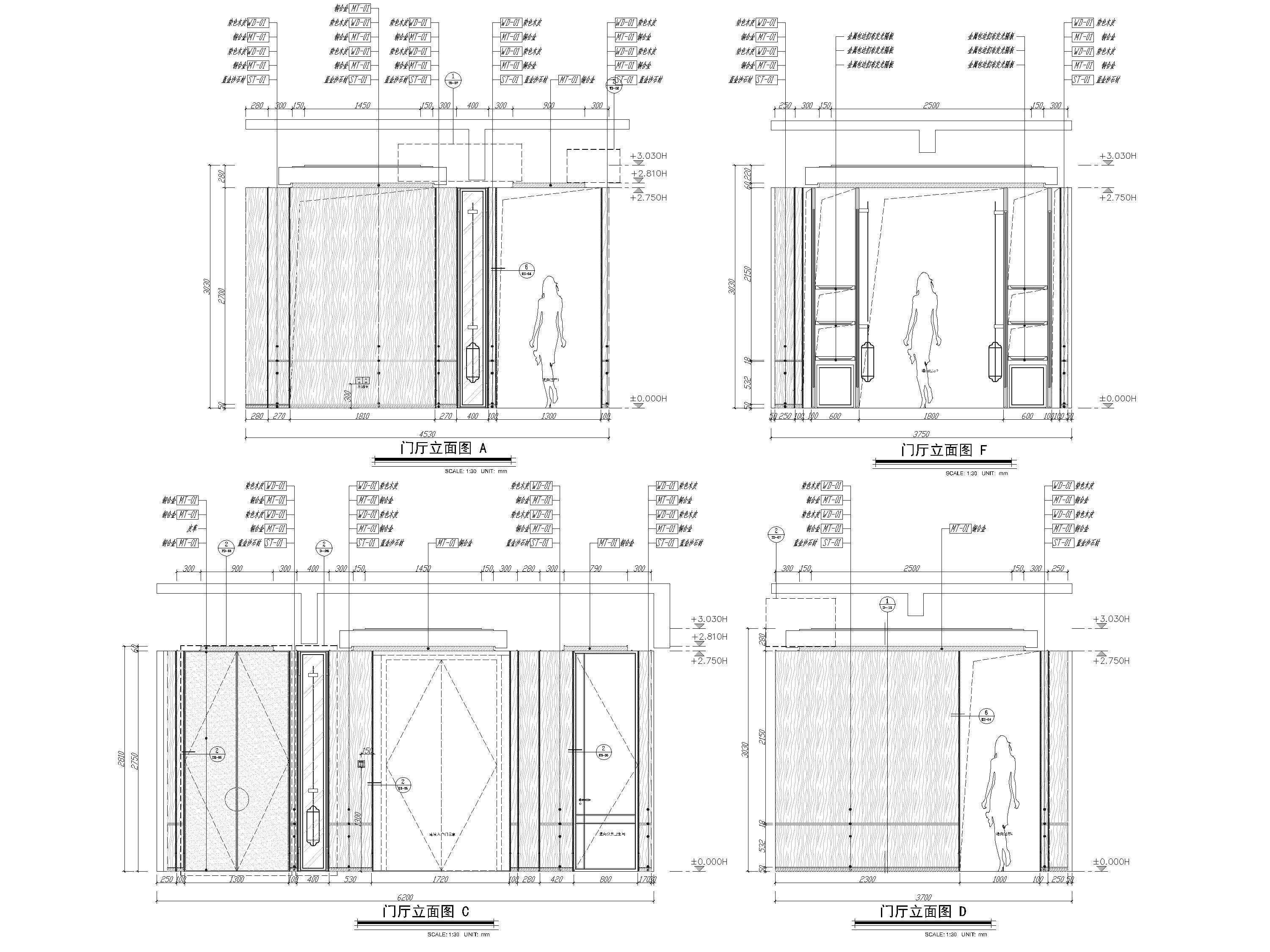
门厅立面图

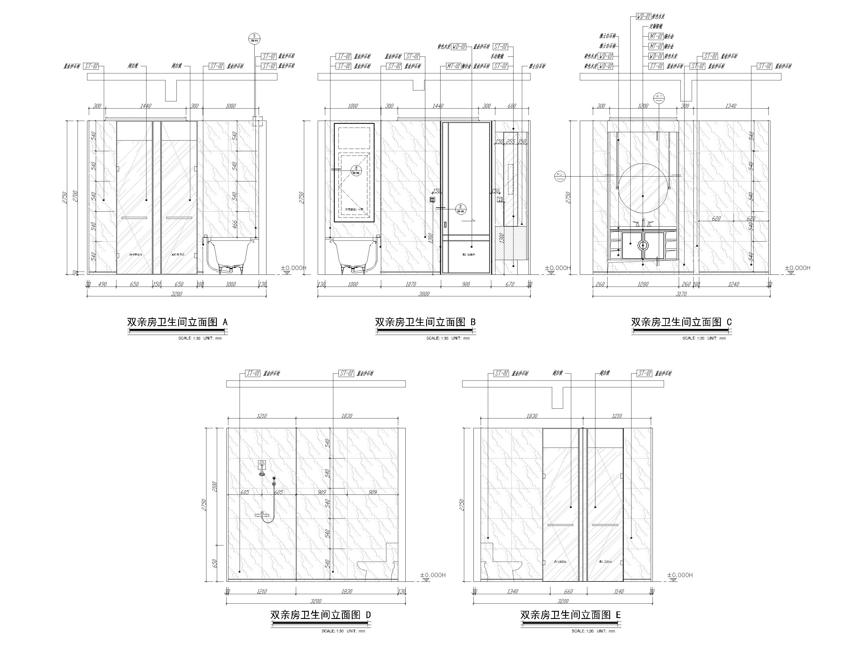
双亲房立面图

卫生间立面图

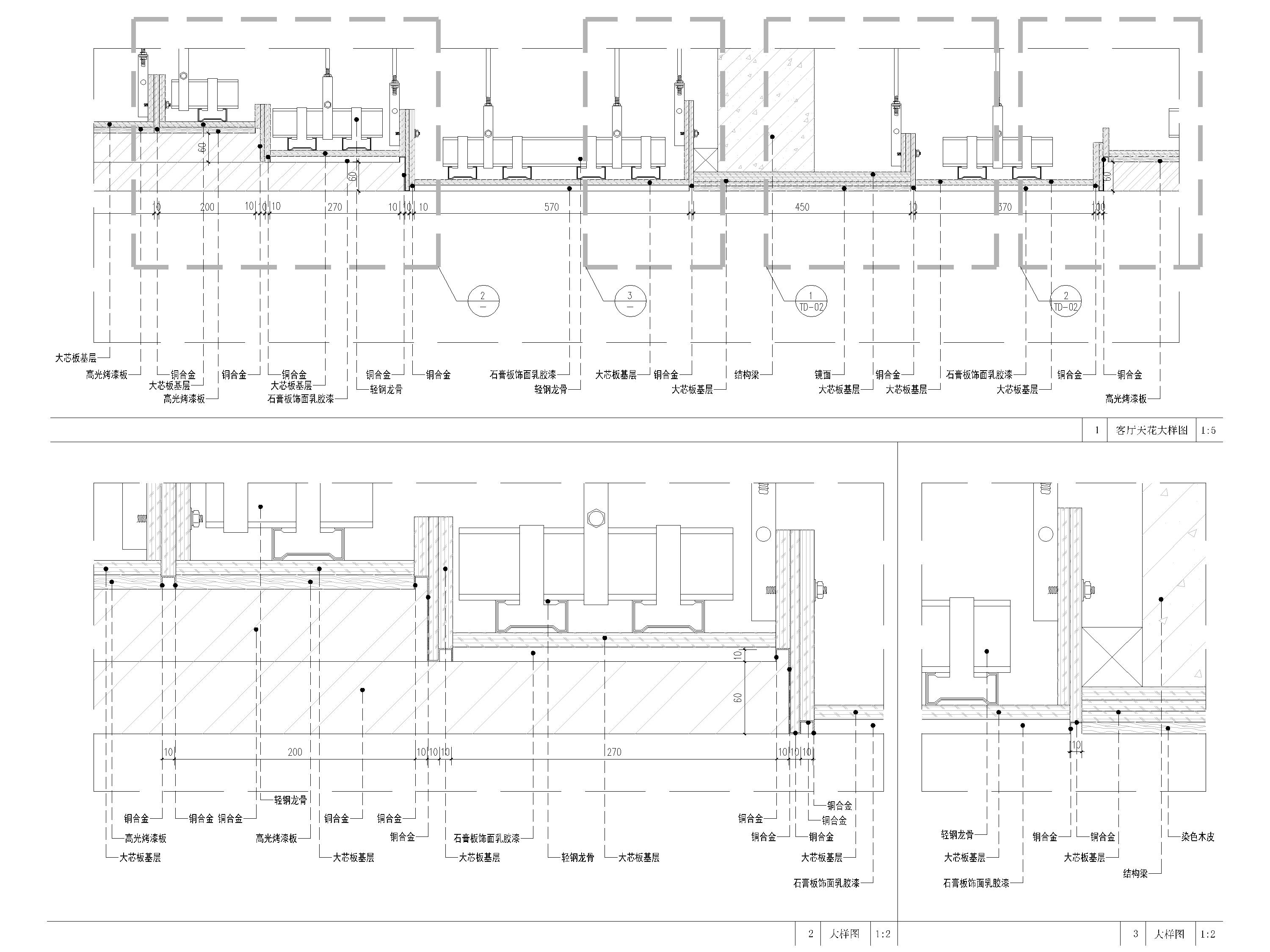
天花节点详图

天花节点详图2

成都文儒德别墅实景拍摄

成都文儒德别墅实景拍摄

成都文儒德别墅实景拍摄

成都文儒德别墅实景拍摄

成都文儒德别墅实景拍摄

成都文儒德别墅实景拍摄

下载帮助: 发表评论 加入收藏夹 错误报告
版权声明

本文仅代表作者观点,不代表本站立场。
本文有所侵权,违规,请发送链接至 tmgczl@163.com一个工作日内处理完毕

本文地址:https://www.tmgczl.com//shinei/jiazhuangsheji/100794.html

留言与评论(共有 条评论)

   
验证码:
资诺讯广告飞猫资源网

Powered By 工程资料

使用手机软件扫描微信二维码