| 文件类型: |
rar |
 |
| 界面语言: |
简体中文 |
| 运行环境: |
NT/2000/XP/2003/Vista |
| 授权方式: |
共享软件 |
| 软件大小: |
|
| 软件等级: |
 |
| 资料类型: |
规范 |
| 软件登陆: |
admin |
| 作 者 : |
|
| 解压密码: |
www.tmgczl.com |
| 点数: |
4点 |
| 点数说明: |
下载点数获取方式:(1)通过充值获取点数在线充值 (2)通过每天签到获取点数,每天赠送的点数随机签到(3)通过共享资料,别人下载有收益分成发布 |
| 下载地址: |
[ 权限:普通会员 下载地址1 ]
|
| 软件简介: |
空间划分:别墅(1-3层) 空间划分:三居室 结构类型:复式 图纸深度:施工图 项目位置:山东 设计风格:中式风格 图纸格式:JPG,天正7,CAD2000 设计时间:2019 包含图片:效果图 建筑面积:330㎡ 楼层数:2层 [山东]荷韵花园330㎡二层三居室别墅样板间丨设计方案119页+效果图+施工蓝图+电气图+物料书丨1.7G丨2019.05
资料内容包含:CAD施工图(图纸目录,施工图设计说明、平面图,立面图,节点大样,给排水,电气图纸等)设计方案,效果图,物料书等
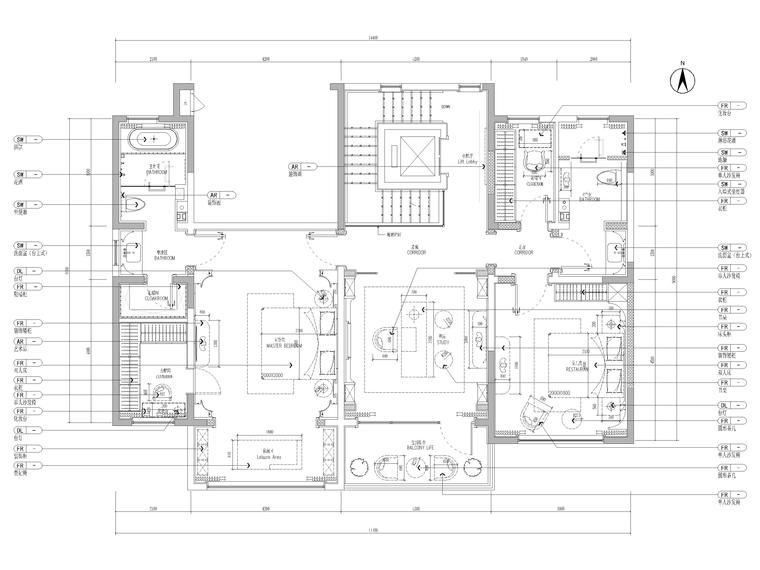
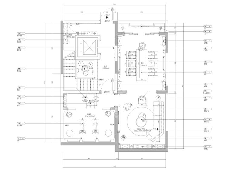
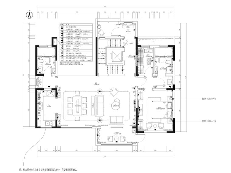
![[山东]330㎡二层三居中式别墅样板间施工图-一层家居布置图 [山东]330㎡二层三居中式别墅样板间施工图-一层家居布置图](https://newoss.zhulong.com/forum/202012/15/51/144651uywnjcrdlpmqzrnr.jpg?x-oss-process=image/resize,w_760)
一层家居布置图
![[山东]330㎡二层三居中式别墅样板间施工图-二层家居布置图 [山东]330㎡二层三居中式别墅样板间施工图-二层家居布置图](https://newoss.zhulong.com/forum/202012/15/52/144652mkddh8hdyuhzu0x4.jpg?x-oss-process=image/resize,w_760)
二层家居布置图
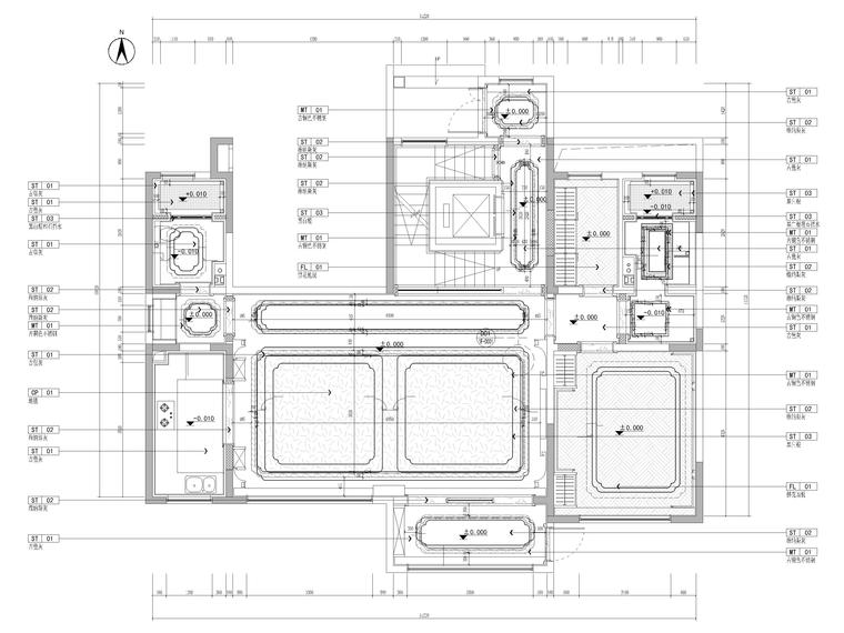
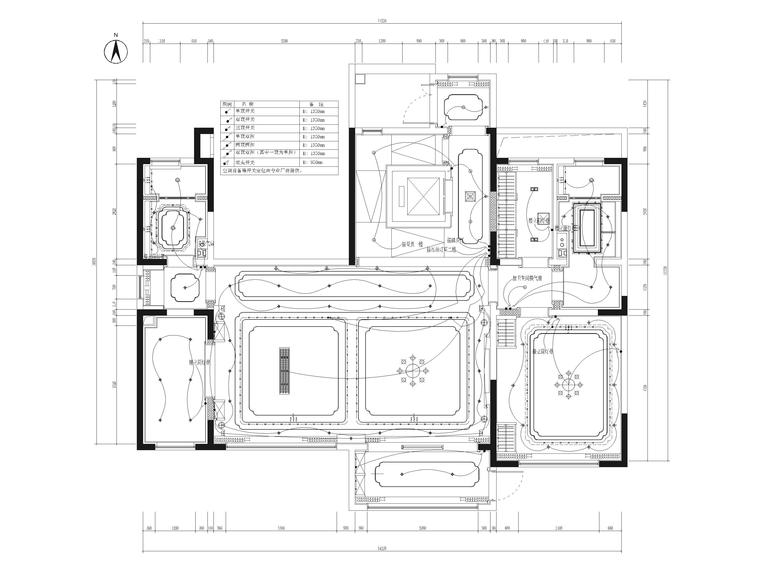
![[山东]330㎡二层三居中式别墅样板间施工图-负一层家居布置图 [山东]330㎡二层三居中式别墅样板间施工图-负一层家居布置图](https://newoss.zhulong.com/forum/202012/15/53/144653dvuxcz92wju3ccgk.jpg?x-oss-process=image/resize,w_760)
负一层家居布置图
![[山东]330㎡二层三居中式别墅样板间施工图-一层地面铺装图 [山东]330㎡二层三居中式别墅样板间施工图-一层地面铺装图](https://newoss.zhulong.com/forum/202012/15/53/144653qzi1dxztzhladryr.jpg?x-oss-process=image/resize,w_760)
一层地面铺装图
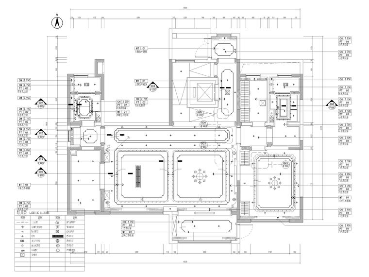
![[山东]330㎡二层三居中式别墅样板间施工图-一层天花布置图 [山东]330㎡二层三居中式别墅样板间施工图-一层天花布置图](https://newoss.zhulong.com/forum/202012/15/54/144654otfyev5w2poq8m9i.jpg?x-oss-process=image/resize,w_760)
一层天花布置图
![[山东]330㎡二层三居中式别墅样板间施工图-一层给水点位图 [山东]330㎡二层三居中式别墅样板间施工图-一层给水点位图](https://newoss.zhulong.com/forum/202012/15/55/144655qryh1i04cyfgqblf.jpg?x-oss-process=image/resize,w_760)
一层给水点位图
![[山东]330㎡二层三居中式别墅样板间施工图-一层插座布置图 [山东]330㎡二层三居中式别墅样板间施工图-一层插座布置图](https://newoss.zhulong.com/forum/202012/15/56/14465620mjnpfeh19sqp17.jpg?x-oss-process=image/resize,w_760)
一层插座布置图
![[山东]330㎡二层三居中式别墅样板间施工图-一层开关控制图 [山东]330㎡二层三居中式别墅样板间施工图-一层开关控制图](https://newoss.zhulong.com/forum/202012/15/57/144657au4a3a6ns9ajkccx.jpg?x-oss-process=image/resize,w_760)
一层开关控制图
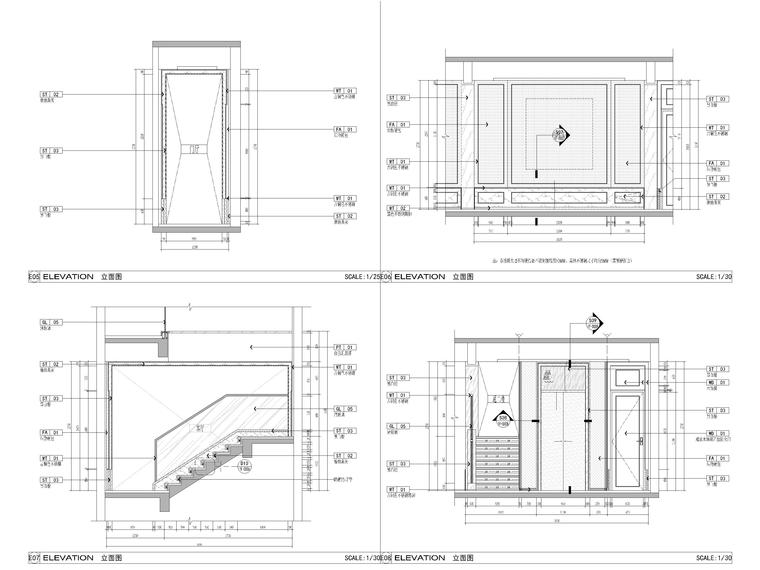
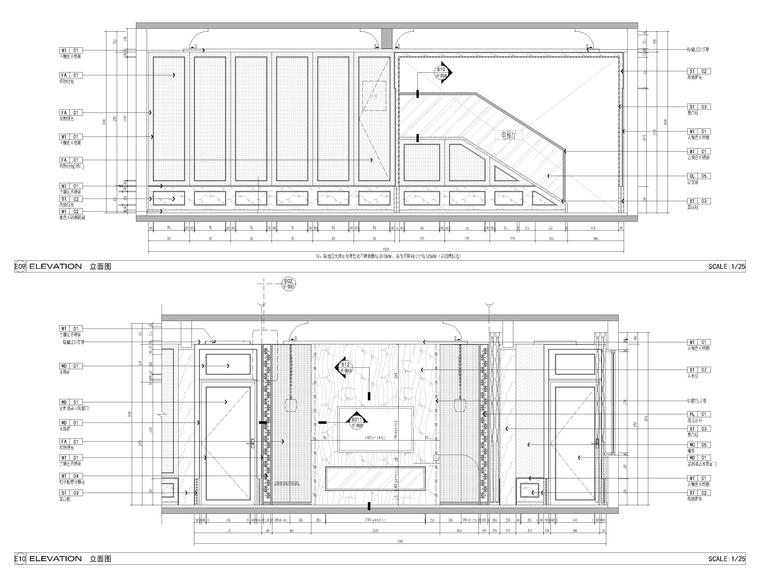
![[山东]330㎡二层三居中式别墅样板间施工图-别墅立面图 [山东]330㎡二层三居中式别墅样板间施工图-别墅立面图](https://newoss.zhulong.com/forum/202012/15/58/14465861fyvjdchh6m7gx5.jpg?x-oss-process=image/resize,w_760)
别墅立面图
![[山东]330㎡二层三居中式别墅样板间施工图-别墅立面图2 [山东]330㎡二层三居中式别墅样板间施工图-别墅立面图2](https://newoss.zhulong.com/forum/202012/15/59/144659q3ij0kqmt7c3rohu.jpg?x-oss-process=image/resize,w_760)
别墅立面图2
![[山东]330㎡二层三居中式别墅样板间施工图-别墅立面图3 [山东]330㎡二层三居中式别墅样板间施工图-别墅立面图3](https://newoss.zhulong.com/forum/202012/15/1/144701bxckyr2bdugv3rjd.jpg?x-oss-process=image/resize,w_760)
别墅立面图3
![[山东]330㎡二层三居中式别墅样板间施工图-别墅立面图4 [山东]330㎡二层三居中式别墅样板间施工图-别墅立面图4](https://newoss.zhulong.com/forum/202012/15/1/144701nvvserzgkdoc7pkl.jpg?x-oss-process=image/resize,w_760)
别墅立面图4
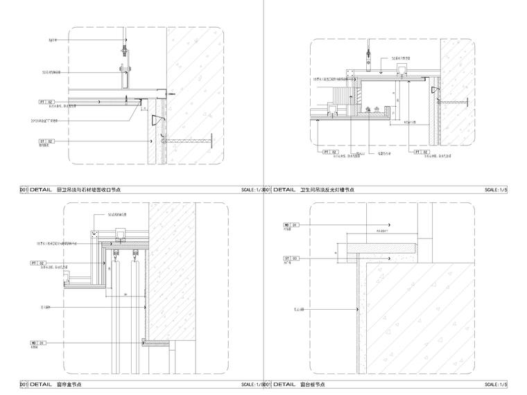
![[山东]330㎡二层三居中式别墅样板间施工图-节点大样详图 [山东]330㎡二层三居中式别墅样板间施工图-节点大样详图](https://newoss.zhulong.com/forum/202012/15/2/144702x14aglndphrdrp8a.jpg?x-oss-process=image/resize,w_760)
节点大样详图
![[山东]330㎡二层三居中式别墅样板间施工图-效果图 (1) [山东]330㎡二层三居中式别墅样板间施工图-效果图 (1)](https://newoss.zhulong.com/forum/202012/15/41/1447415qzpzlwecw8hnssq.jpg?x-oss-process=image/resize,w_760)
别墅效果图
![[山东]330㎡二层三居中式别墅样板间施工图-效果图 (2) [山东]330㎡二层三居中式别墅样板间施工图-效果图 (2)](https://newoss.zhulong.com/forum/202012/15/46/144746ng7fo0oouw2cdb1d.jpg?x-oss-process=image/resize,w_760)
别墅效果图
![[山东]330㎡二层三居中式别墅样板间施工图-效果图 (3) [山东]330㎡二层三居中式别墅样板间施工图-效果图 (3)](https://newoss.zhulong.com/forum/202012/15/52/144752qljmnofb8idnaa9m.jpg?x-oss-process=image/resize,w_760)
别墅效果图
![[山东]330㎡二层三居中式别墅样板间施工图-效果图 (6) [山东]330㎡二层三居中式别墅样板间施工图-效果图 (6)](https://newoss.zhulong.com/forum/202012/15/59/144759tgj095ydds31vkaa.jpg?x-oss-process=image/resize,w_760)
别墅效果图
![[山东]330㎡二层三居中式别墅样板间施工图-效果图 (9) [山东]330㎡二层三居中式别墅样板间施工图-效果图 (9)](https://newoss.zhulong.com/forum/202012/15/5/144805kxhltq71uvjznlgr.jpg?x-oss-process=image/resize,w_760)
别墅效果图
![[山东]330㎡二层三居中式别墅样板间施工图-效果图 (10) [山东]330㎡二层三居中式别墅样板间施工图-效果图 (10)](https://newoss.zhulong.com/forum/202012/15/10/1448100sn0c2cwdktun4cb.jpg?x-oss-process=image/resize,w_760)
别墅效果图
![[山东]330㎡二层三居中式别墅样板间施工图-效果图 (14) [山东]330㎡二层三居中式别墅样板间施工图-效果图 (14)](https://newoss.zhulong.com/forum/202012/15/16/1448160clnsg3xbdo8qtbz.jpg?x-oss-process=image/resize,w_760)
别墅效果图
![[山东]330㎡二层三居中式别墅样板间施工图-效果图 (27) [山东]330㎡二层三居中式别墅样板间施工图-效果图 (27)](https://newoss.zhulong.com/forum/202012/15/23/144823foutyzqqq7hz1t5y.jpg?x-oss-process=image/resize,w_760)
别墅效果图 |
| 下载帮助: |
发表评论 加入收藏夹 错误报告 |
|
版权声明
本文仅代表作者观点,不代表本站立场。
本文有所侵权,违规,请发送链接至 tmgczl@163.com一个工作日内处理完毕
本文地址:https://www.tmgczl.com//shinei/jiazhuangsheji/2020-12-18/94901.html