| 文件类型: |
zip |
 |
| 界面语言: |
[db:软件语言] |
| 运行环境: |
[db:运行环境] |
| 授权方式: |
[db:授权形式] |
| 软件大小: |
34.39MB |
| 软件等级: |
 |
| 资料类型: |
|
| 软件登陆: |
jian |
| 作 者 : |
admin |
| 解压密码: |
|
| 点数: |
1点 |
| 点数说明: |
下载点数获取方式:(1)通过充值获取点数在线充值 (2)通过每天签到获取点数,每天赠送的点数随机签到(3)通过共享资料,别人下载有收益分成发布 |
| 下载地址: |
[ 权限:普通会员 下载地址1 ]
|
| 软件简介: |
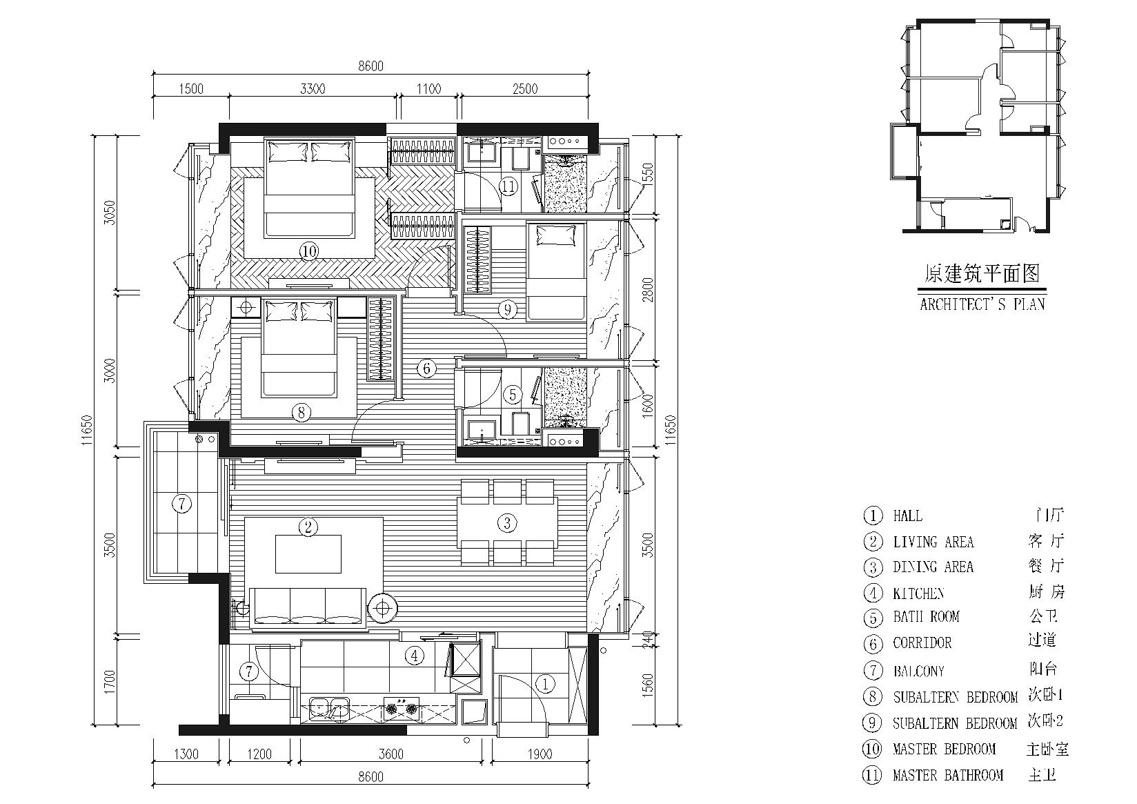
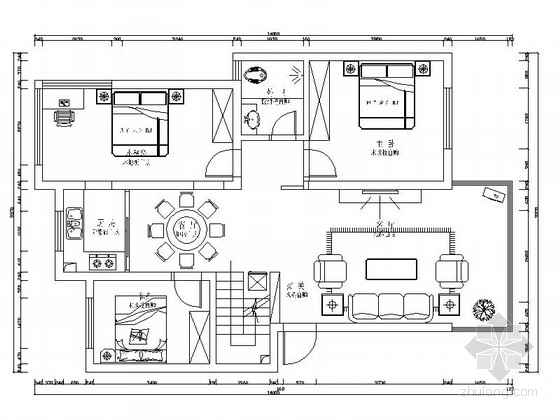
[深圳]京基长源项目4栋2层B户型图纸丨方案+效果图+软装+施工图+物料书丨2016.12资料内容包含:实景拍摄、CAD施工图(图纸目录,施工图设计说明、样板间平面图,立面图,节点大样,门表图,照明控制,插座定位,水路定位等)施工说明,材料表等平面布置图天花布置图立面索引图地面铺装图墙体尺寸图天花定位图照明控制图客餐厅立面图厨房立面图卫生间立面图墙身剖面图 |
| 下载帮助: |
发表评论 加入收藏夹 错误报告 |
|
版权声明
本文仅代表作者观点,不代表本站立场。
本文有所侵权,违规,请发送链接至 tmgczl@163.com一个工作日内处理完毕
本文地址:https://www.tmgczl.com//shinei/jiazhuangsheji/105780.html