- 建筑功能:园林建筑
- 图纸深度:施工图
- 民用建筑设计使用年限:50年
- 结构形式:砌体结构,钢筋混凝土结构,钢结构
- 特种结构:水池
- 基础形式 :其它基础
- 结构安全等级:二级
- 地基基础设计等级:丙级
- 抗震设防烈度:7度抗震
- 风压:0.40kN/㎡
- 雪压:0.65kN/㎡
- 图纸张数:118张
- 设计时间:2017
建筑概述:景观设计总面积为11110平方米,包含园建、道路及广场、木作、面材铺装、围墙铁艺。包含图纸类型5种:结构、建筑、绿化、给排水、电气。
附件内含:设计总说明、总图施工图、停车位及铺装通用做法、隐形井盖做法通用图、入口门廊详图、南侧围墙详图、转角围墙详图、北侧围墙及精神堡垒详图、中庭水景立面及断面图、中庭大样图、停车场通道尺寸定位及竖向平面图、停车场通道景墙详图、树池坐凳详图、停车场通道种植池详图、停车场冲洗区详图、中庭矮墙详图、北侧休息区平面图、木铺装详图、南侧活动区网格及坐标平面图、挡墙详图、内庭廊架详图、内庭水景详图、结构设计总说明、入口门廊结构详图、精神堡垒结构详图、中庭景墙及水景结构详图、休息区景墙基础平面图、景墙构造柱布置图、内庭廊架结构详图、内庭水景结构详图、种植设计说明、苗木清单、乔灌木种植平面图、灌木地被种植平面图、给排水设计说明、水表井及阀门井图集附图、入口门廊水景水循环详图......,cad格式,共计图纸118张。
![[昆明]著名示范小区景观设计全套图纸2017-内庭廊架结构详图 [昆明]著名示范小区景观设计全套图纸2017-内庭廊架结构详图](https://newoss.zhulong.com/forum/202012/02/25/152025ce2jy3bm9swjamcx.jpg?x-oss-process=image/resize,w_760)
内庭廊架结构详图
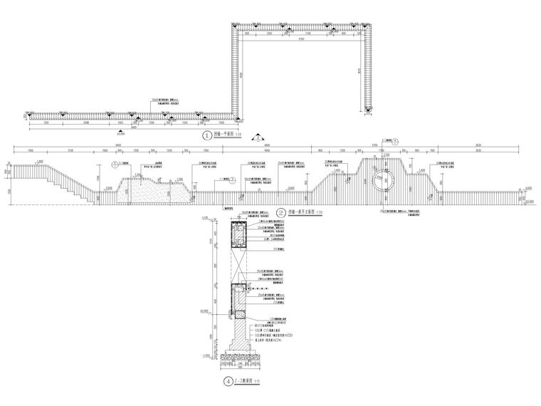
![[昆明]著名示范小区景观设计全套图纸2017-挡墙立面详图 [昆明]著名示范小区景观设计全套图纸2017-挡墙立面详图](https://newoss.zhulong.com/forum/202012/02/56/151956w6s9lei9vtpxo5op.jpg?x-oss-process=image/resize,w_760)
挡墙立面详图
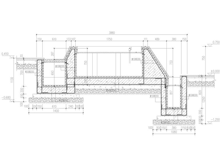
![[昆明]著名示范小区景观设计全套图纸2017-内庭水景结构断面图 [昆明]著名示范小区景观设计全套图纸2017-内庭水景结构断面图](https://newoss.zhulong.com/forum/202012/02/36/1520365ooyxtjbdiucmjxy.jpg?x-oss-process=image/resize,w_760)
内庭水景结构断面图
![[昆明]著名示范小区景观设计全套图纸2017-精神堡垒结构详图 [昆明]著名示范小区景观设计全套图纸2017-精神堡垒结构详图](https://newoss.zhulong.com/forum/202012/02/40/152040g5szdicmtawcuw4x.jpg?x-oss-process=image/resize,w_760)
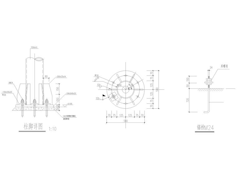
精神堡垒结构详图
![[昆明]著名示范小区景观设计全套图纸2017-入口门廊基础平面图 [昆明]著名示范小区景观设计全套图纸2017-入口门廊基础平面图](https://newoss.zhulong.com/forum/202012/02/52/152052e3wfto1lsdhrzxvz.jpg?x-oss-process=image/resize,w_760)
入口门廊基础平面图
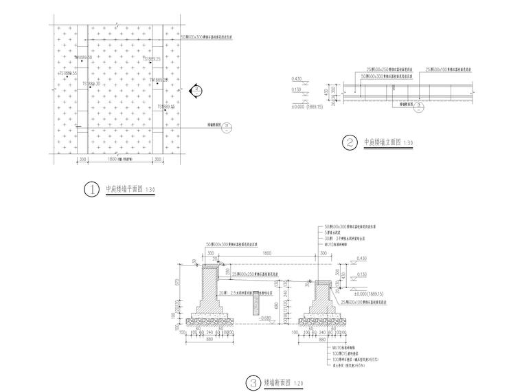
![[昆明]著名示范小区景观设计全套图纸2017-中庭矮墙详图 [昆明]著名示范小区景观设计全套图纸2017-中庭矮墙详图](https://newoss.zhulong.com/forum/202012/02/52/152052zqkuyyk9zjkc0puj.jpg?x-oss-process=image/resize,w_760)
中庭矮墙详图
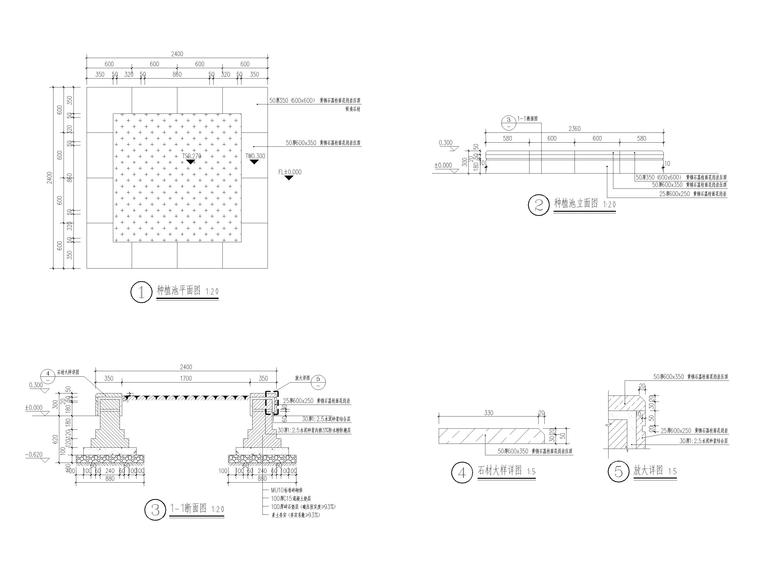
![[昆明]著名示范小区景观设计全套图纸2017-种植池详图 [昆明]著名示范小区景观设计全套图纸2017-种植池详图](https://newoss.zhulong.com/forum/202012/02/53/152053rqwktsuex324kmhu.jpg?x-oss-process=image/resize,w_760)
种植池详图
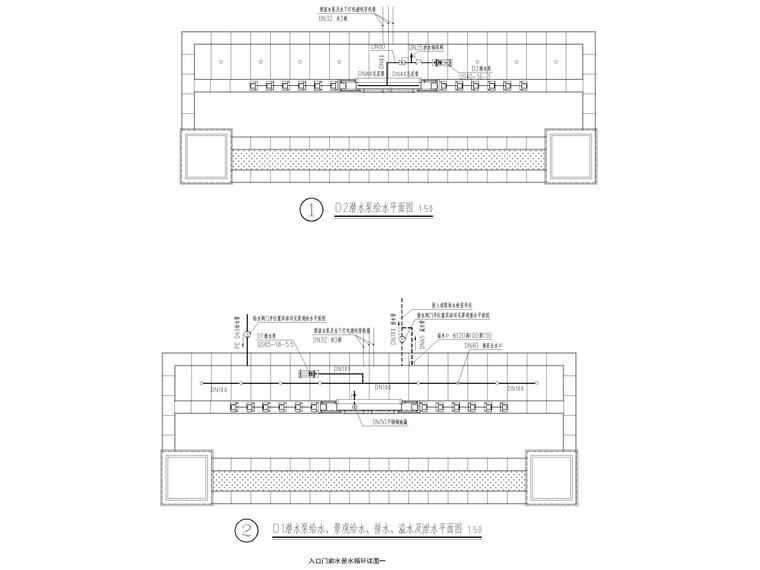
![[昆明]著名示范小区景观设计全套图纸2017-入口门廊水景水循环详图 [昆明]著名示范小区景观设计全套图纸2017-入口门廊水景水循环详图](https://newoss.zhulong.com/forum/202012/02/3/152103cprowvvibt5k92sh.jpg?x-oss-process=image/resize,w_760)
入口门廊水景水循环详图
![[昆明]著名示范小区景观设计全套图纸2017-入口门廊电气照明立面图 [昆明]著名示范小区景观设计全套图纸2017-入口门廊电气照明立面图](https://newoss.zhulong.com/forum/202012/02/8/152108nnsz5qanl7b3zm9l.jpg?x-oss-process=image/resize,w_760)
入口门廊电气照明立面图
![[昆明]著名示范小区景观设计全套图纸2017-入口景墙剖面图 [昆明]著名示范小区景观设计全套图纸2017-入口景墙剖面图](https://newoss.zhulong.com/forum/202012/02/11/152111gshmlcx9b0zkoi7z.jpg?x-oss-process=image/resize,w_760)
入口景墙剖面图