'); })();
首页 > 建筑工程 > 建筑图纸

[荆门]5层框架结构员工宿舍楼全套图纸2017

文件类型: rar
界面语言: 简体中文
运行环境: NT/2000/XP/2003/Vista
授权方式: 共享软件
软件大小:
软件等级:
资料类型: 规范
软件登陆: admin
作 者 :
解压密码: www.tmgczl.com
点数: 4点
点数说明: 下载点数获取方式:
(1)通过充值获取点数在线充值
(2)通过每天签到获取点数,每天赠送的点数随机签到
(3)通过共享资料,别人下载有收益分成发布
下载地址: [ 权限:普通会员 下载地址1 ]
软件简介:
  • 建筑功能:住宅
  • 高度类别:多层建筑
  • 地上层数:5层
  • 图纸深度:施工图
  • 民用建筑设计使用年限:50年
  • 结构形式:钢筋混凝土结构
  • 钢筋混凝土结构:框架
  • 基础形式 :独立基础
  • 结构安全等级:二级
  • 地基基础设计等级:丙级
  • 抗震设防烈度:6度抗震
  • 风压:0.30kN/㎡
  • 雪压:0.35kN/㎡
  • 图纸张数:81张
  • 设计时间:2017
本资料是[荆门]5层框架结构员工宿舍楼全套图纸,出图时间是2017年3月。
建筑概述:宿舍楼建筑高度为18.3米。建筑占地面积为4810.92平方米。包含图纸类型5种:结构、建筑、给排水、电气、暖通。
附件内含:结构设计总说明、基础平面布置图、梁平法施工图、框架柱配筋表、板平法施工图、楼梯详图、建筑施工图设计总说明、建筑做法说明、节能设计说明、建筑平面图、门窗表及门窗分格示意图、建筑立面图、建筑剖面图、卫生间大样图、墙身大样图、节点大样图、电气设计说明、设备及主要材料表、配电系统图、照明平面图、应急照明平面图、空调_插座及干线平面图、配电平面图、屋顶防雷平面图、接地平面图、火灾自动报警系统设计说明......,cad格式,共计图纸81张。
[荆门]5层框架结构员工宿舍楼全套图纸2017-梁平法施工图
梁平法施工图
[荆门]5层框架结构员工宿舍楼全套图纸2017-板平法施工图
板平法施工图
[荆门]5层框架结构员工宿舍楼全套图纸2017-基础平面布置图
基础平面布置图
[荆门]5层框架结构员工宿舍楼全套图纸2017-建筑立面图
建筑立面图
[荆门]5层框架结构员工宿舍楼全套图纸2017-建筑平面图
建筑平面图
[荆门]5层框架结构员工宿舍楼全套图纸2017-无障碍宿舍大样图
无障碍宿舍大样图
[荆门]5层框架结构员工宿舍楼全套图纸2017-消防报警接线系统图
消防报警接线系统图
[荆门]5层框架结构员工宿舍楼全套图纸2017-女儿墙大样
女儿墙大样
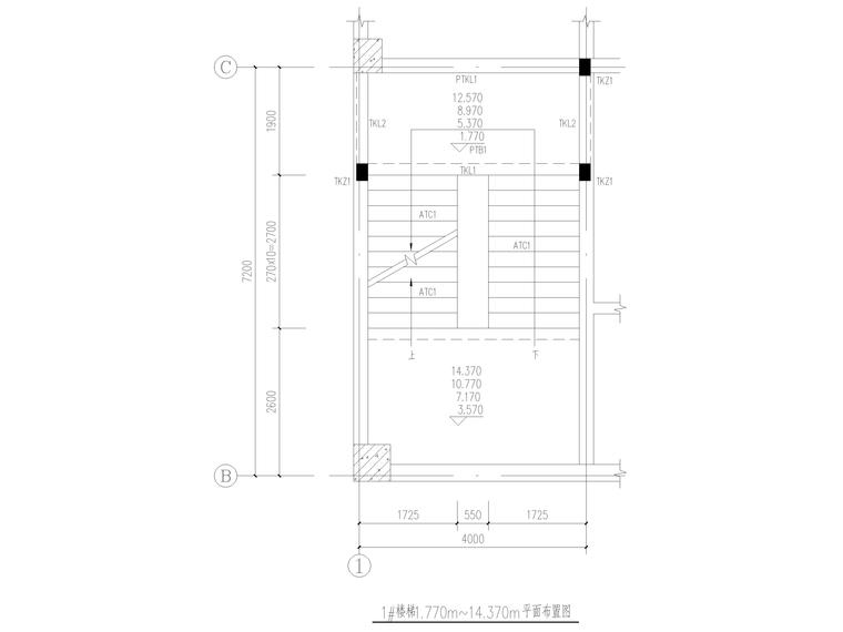
[荆门]5层框架结构员工宿舍楼全套图纸2017-楼梯结构平面布置图
楼梯结构平面布置图
[荆门]5层框架结构员工宿舍楼全套图纸2017-等电位联接板示意图
等电位联接板示意图
下载帮助: 发表评论 加入收藏夹 错误报告
版权声明

本文仅代表作者观点,不代表本站立场。
本文有所侵权,违规,请发送链接至 tmgczl@163.com一个工作日内处理完毕

本文地址:https://www.tmgczl.com//jianzhu/jianzhutuzhi/2020-12-03/94883.html

留言与评论(共有 条评论)

   
验证码:
资诺讯广告飞猫资源网

Powered By 工程资料

使用手机软件扫描微信二维码